Maslos Опубликовано 14 февраля, 2018 Жалоба Share Опубликовано 14 февраля, 2018 Весной хочу уже начать строить дом. Пока выбираем проект. Что скажите о таком доме http://www.postroi.ru/projects/l-112-1p/ Вот планировка и примерный внешний вид. Основной материал - это газобетон. Сложно строить самому будет, помощников найму. И сколько фундамент после заливки должен отстаиваться? Ссылка на комментарий Поделиться на другие сайты More sharing options...
Maslos Опубликовано 14 февраля, 2018 Автор Жалоба Share Опубликовано 14 февраля, 2018 И можно ли в марте, в середине, заливать фундамент? Ссылка на комментарий Поделиться на другие сайты More sharing options...
AMA3OH Опубликовано 14 февраля, 2018 Жалоба Share Опубликовано 14 февраля, 2018 имхо. мона, но не нуна, если для себя. Вы же не будете пользоваться зимними составами с соблюдением всех технологий. Ссылка на комментарий Поделиться на другие сайты More sharing options...
Саломон Опубликовано 14 февраля, 2018 Жалоба Share Опубликовано 14 февраля, 2018 А где строиться собрались? Ссылка на комментарий Поделиться на другие сайты More sharing options...
Maslos Опубликовано 14 февраля, 2018 Автор Жалоба Share Опубликовано 14 февраля, 2018 Участок купил на Ильинке Ссылка на комментарий Поделиться на другие сайты More sharing options...
Alex_Hope Опубликовано 14 февраля, 2018 Жалоба Share Опубликовано 14 февраля, 2018 @Maslos Вам нужно на Форумхауз , там и подскажут, и проекты с обсуждениями есть Ссылка на комментарий Поделиться на другие сайты More sharing options...
Maslos Опубликовано 14 февраля, 2018 Автор Жалоба Share Опубликовано 14 февраля, 2018 1 минуту назад, Alex_Hope сказал: @Maslos Вам нужно на Форумхауз , там и подскажут, и проекты с обсуждениями есть спасибо Ссылка на комментарий Поделиться на другие сайты More sharing options...
Sonauto Опубликовано 14 февраля, 2018 Жалоба Share Опубликовано 14 февраля, 2018 1 час назад, Maslos сказал: Участок купил на Ильинке Почем? И где именно? Думаю об участке. Я живу на Морском. Ссылка на комментарий Поделиться на другие сайты More sharing options...
квази Опубликовано 15 февраля, 2018 Жалоба Share Опубликовано 15 февраля, 2018 на первом этаже спален не будет??? Не устанете подниматься на второй? Годы летят быстро, молодость пройдет моментально... Ссылка на комментарий Поделиться на другие сайты More sharing options...
Sonauto Опубликовано 15 февраля, 2018 Жалоба Share Опубликовано 15 февраля, 2018 И зачем ванная на втором этаже? А кухню и гостинную я бы объединил. Ссылка на комментарий Поделиться на другие сайты More sharing options...
Саломон Опубликовано 15 февраля, 2018 Жалоба Share Опубликовано 15 февраля, 2018 Про гостинную и кухню согласен. Закутки лишнее. Ссылка на комментарий Поделиться на другие сайты More sharing options...
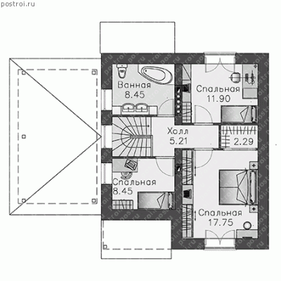
Gamon Опубликовано 15 февраля, 2018 Жалоба Share Опубликовано 15 февраля, 2018 Возможно вы уже дали себе ответ на этот вопрос, но все же спрошу. Принципиально хотите строить дом в 2 этажа? Если еще не решили, то я бы рекомендовал одноэтажное строительство, если конечно площадь участка позволяет. Про постоянный подъем и спуск уже сказали, я бы хотел затронуть чисто денежную составляющую. Вот лишь некоторые моменты: 1. Общая площадь судя по картинке - 135 кв.м., из них 16.1 кв.м. - «лишней» площади (коридоры, лестничная площадка, холлы). Эту площадь нужно построить, оштукатурить, оклеить обоями. И главное, отапливать. Кроме того, эта ненужная площадь облагается налогом на недвижимость. 2. Лестница. Довольно дорогой элемент интерьера. И исходя из проекта предполагаются забежные ступени, имхо неудобно и опасно. 3. Инженерные коммуникации – электрика, сантехника, вентиляция, отопление. Трассы по двум этажам будут ощутимо длиннее, а значит - дороже. 4. Если планируется газобетон, то предстоит наружная отделка. Наверное не нужно объяснять, что для отделки 2 этажного дома нужно намного больше трудозатрат, чем для одноэтажного. Другой вопрос если бы стены были такими же как на картинке из кирпича, который кладется в процессе строительства коробки. Специально не пишу про кубатуру необходимого бетона для фундаментов, устройства перекрытий и конструкции кровли. Тут уже нужно детально все просчитывать и сравнивать 1 и 2 этажные дома. Кроме того рекомендую вот это видео по планировке жилых и нежилых помещений, так как для нашего климата это весьма и весьма актуально Ссылка на комментарий Поделиться на другие сайты More sharing options...
len Опубликовано 20 февраля, 2018 Жалоба Share Опубликовано 20 февраля, 2018 Очень смущает ванная на втором этаже. Насколько хорошее давление воды по улице? У знакомых на элементарный туалет на втором этаже давления не хватало. Еще, если я правильно поняла, прямо под ванной планируется система газового оборудования? Газовики разрешат? А если прорвет? Ссылка на комментарий Поделиться на другие сайты More sharing options...
IxTab Опубликовано 20 февраля, 2018 Жалоба Share Опубликовано 20 февраля, 2018 S = 112 квм, если участок позволяет разумнее будет построить одноэтажный. Ссылка на комментарий Поделиться на другие сайты More sharing options...
Владимир30 Опубликовано 20 февраля, 2018 Жалоба Share Опубликовано 20 февраля, 2018 Как построивший 2-х этажный дом полностью соглашусь с Gamon)) Ссылка на комментарий Поделиться на другие сайты More sharing options...
ГМО Опубликовано 20 февраля, 2018 Жалоба Share Опубликовано 20 февраля, 2018 В 15.02.2018 в 11:47, Gamon сказал: 2. Лестница. Довольно дорогой элемент интерьера. И исходя из проекта предполагаются забежные ступени, имхо неудобно и опасно. Делал и забежную лестницу и пролетную. По деньгам практически одинаково. Забежная экономнее по площади, примерно на метр занимает меньше площади в длину. На первом этаже комнаты обязательны если планируете перевозить к себе когда нибудь родителей. Я лично ни смотря ни на что за два этажа. Все это "не будете ходить" до поры до времени. Иногда нужно просто где то спокойно поработать, на одном этаже при наличии детей это проблематично. Просто телек, движняк по комнатам, еще что то. На второй этаж просто так никто постоянно бегать не будет. Поэтому джакузи с телеком и кабинет с сигарами лучше делать там. Ссылка на комментарий Поделиться на другие сайты More sharing options...
Sonauto Опубликовано 20 февраля, 2018 Жалоба Share Опубликовано 20 февраля, 2018 Сколько людей столько и мнений! З. Ы. У меня одноэтажный. Ссылка на комментарий Поделиться на другие сайты More sharing options...
iec Опубликовано 20 февраля, 2018 Жалоба Share Опубликовано 20 февраля, 2018 Я тоже за одноэтажный дом, такой и имею) плюс строить надо так, чтобы осознавать, что жить потом придётся вдвоём, ибо нормальные дети должны уходить и жить своими семьями, а не под маминым с папиным боком. Ссылка на комментарий Поделиться на другие сайты More sharing options...
ГМО Опубликовано 21 февраля, 2018 Жалоба Share Опубликовано 21 февраля, 2018 12 часов назад, iec сказал: Я тоже за одноэтажный дом, такой и имею) плюс строить надо так, чтобы осознавать, что жить потом придётся вдвоём, ибо нормальные дети должны уходить и жить своими семьями, а не под маминым с папиным боком. А родители? Ссылка на комментарий Поделиться на другие сайты More sharing options...
AMA3OH Опубликовано 21 февраля, 2018 Жалоба Share Опубликовано 21 февраля, 2018 13 часов назад, iec сказал: Я тоже за одноэтажный дом, такой и имею) плюс строить надо так, чтобы осознавать, что жить потом придётся вдвоём и не только. К старости или во время невзгод (болезни, травмы, ноги плохо ходят...) удобно ходить по дому с ровными одноуровневыми полами, и никаких порогов между комнатами - проехать на коляске, всегда думаем о будущем. Выходная дверь прямо выходит на двор просторный или улицу, чтоб гроб без проблем вынести - это всё жизненный опыт подсказывает. Высокие выходные лестницы - тоже не гуд. Дома ВСЕ удобства - ванная. душ. туалет. Уже испытано - пригодилось. Ссылка на комментарий Поделиться на другие сайты More sharing options...
iec Опубликовано 21 февраля, 2018 Жалоба Share Опубликовано 21 февраля, 2018 2 часа назад, ГМО сказал: А родители? а это еще хуже...мы не выдержали Ссылка на комментарий Поделиться на другие сайты More sharing options...
IxTab Опубликовано 21 февраля, 2018 Жалоба Share Опубликовано 21 февраля, 2018 10 часов назад, ГМО сказал: А родители? Родителям рядом построить не большой 8х8 ))) Ссылка на комментарий Поделиться на другие сайты More sharing options...
ГМО Опубликовано 21 февраля, 2018 Жалоба Share Опубликовано 21 февраля, 2018 Только что, IxTab сказал: Родителям рядом построить не большой 8х8 ))) Это будет дороже чем второй этаж, плюс отдельный проект на газ. Ссылка на комментарий Поделиться на другие сайты More sharing options...
IxTab Опубликовано 21 февраля, 2018 Жалоба Share Опубликовано 21 февраля, 2018 1 час назад, ГМО сказал: Это будет дороже чем второй этаж, плюс отдельный проект на газ. Зато от тещи чуть подальше Ссылка на комментарий Поделиться на другие сайты More sharing options...
Киса Киса Опубликовано 22 февраля, 2018 Жалоба Share Опубликовано 22 февраля, 2018 А мне поанировка понравилась, когда то даже проектировала похожий. Вариант с двумя этажами мне нравится, у самой квартира в двух уровнях, очень удобно - в выходной дети внизу уже мультики смотрят, а наверху еще спят. Или наоборот вечером уложил детей, а на первом этаже еще жизнь кипит. Ссылка на комментарий Поделиться на другие сайты More sharing options...
Рекомендуемые сообщения
Заархивировано
Эта тема находится в архиве и закрыта для дальнейших ответов.